Nous sommes le 30 Avr 2026 17:03

Heures au format UTC [ Heure d’été ]




Poster un nouveau sujet Répondre au sujet  [ 9 messages ] 
Auteur Message
 Sujet du message: Bague joint "Cyclam" p
MessagePosté: 05 Mai 2014 13:36 
Hors ligne

Inscription: 19 Mar 2014 11:58
Messages: 302
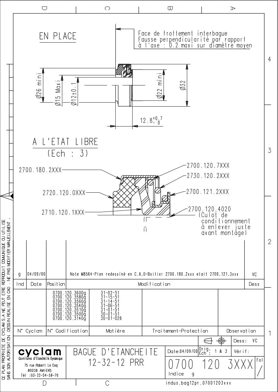
bonjour voici la reponse que j'ai eu de cyclam

Citation:
Bonjour M. Bourdilleau,

La bague que vous recherchez n’est plus fabriquée.

Nous pouvons vous proposer une bague en remplacement, mais plus courte : hauteur en place 13.15mm +/-0.35mm ( au lieu de 23.30mm)

Il faudra donc ajouter une cale de 10.15mm d’épaisseur à l’arrière de la bague (non fournie)

Code Cyclam 0700 120 3510 : description bague 12.32.12 PR.R Q31 01 51

Merci de voir le plan en pièce jointe pour vérification.

Merci de contacter un de nos revendeurs :


il faut donc faire une cale

voici le plan du joint:
Fichier(s) joint(s):
preview-bague-joint-cyclam-pompe-a-eau-1.gif
preview-bague-joint-cyclam-pompe-a-eau-1.gif [ 205.33 Kio | Vu 3178 fois ]


J'en ai commandé d'un autre fournisseur (histoire d'avoir une cale d'épaisseur moins grosse) sur Amazon (e)
le "e" pour ceux qui préfère les Amazones
je vous direz ce qu'il en est au remontage
je dois les recevoir entre le 12 et le 20 mai (faut pas etre pressé pour avoir les frais de port minimaux)



A plus

_________________
Un jour j'irai vivre en théorie...
Parce qu'en théorie, tout ce passe bien...


Haut
 Profil  
 
 Sujet du message: Re: bague joint"cyclam"
MessagePosté: 05 Mai 2014 13:44 
Hors ligne
Avatar de l’utilisateur

Inscription: 16 Juil 2006 18:08
Messages: 62520
Localisation: Jura
:pouce:

_________________
Claude Girod


"Ils sont complètement cinglés mais j'adore !!!" (Pierre 62)


Haut
 Profil  
 
 Sujet du message: Re: bague joint"cyclam"
MessagePosté: 05 Mai 2014 15:06 
Hors ligne
Avatar de l’utilisateur

Inscription: 28 Sep 2013 10:24
Messages: 17028
Localisation: AUXOIS NORD !!!
Excellent

_________________
Diab


Haut
 Profil  
 
 Sujet du message: Re: bague joint"cyclam"
MessagePosté: 05 Mai 2014 17:43 
Hors ligne
Avatar de l’utilisateur

Inscription: 03 Oct 2004 06:58
Messages: 21991
Localisation: Au pays des pommes...
Voilà où le Cyclam mène... :roll:

_________________
J'aime bien les fleurs. N'oubliez-pas d'aller faire un tour ICI


Haut
 Profil  
 
 Sujet du message: Re: bague joint"cyclam"
MessagePosté: 05 Mai 2014 18:36 
Hors ligne
Avatar de l’utilisateur

Inscription: 16 Juil 2006 18:08
Messages: 62520
Localisation: Jura
Copyright ... please ! :D :D

_________________
Claude Girod


"Ils sont complètement cinglés mais j'adore !!!" (Pierre 62)


Haut
 Profil  
 
 Sujet du message: Re: bague joint"cyclam"
MessagePosté: 05 Mai 2014 18:57 
Hors ligne
Avatar de l’utilisateur

Inscription: 07 Juin 2013 22:43
Messages: 29180
Localisation: Bavière-Allemagne
Voilà ou le cycle hymen :tomato:

_________________
Ambulance de 1964 - Faut que ca tourne!!!
Image


Haut
 Profil  
 
 Sujet du message: Re: bague joint"cyclam"
MessagePosté: 05 Mai 2014 19:22 
Hors ligne
Avatar de l’utilisateur

Inscription: 03 Oct 2004 06:58
Messages: 21991
Localisation: Au pays des pommes...
Fin de cycle : Amen...

Faim de cycles : amènes !

_________________
J'aime bien les fleurs. N'oubliez-pas d'aller faire un tour ICI


Haut
 Profil  
 
 Sujet du message: Re: bague joint"cyclam"
MessagePosté: 05 Mai 2014 22:29 
Hors ligne
Avatar de l’utilisateur

Inscription: 11 Juin 2008 01:10
Messages: 7315
Localisation: isere
John a écrit:
Fin de cycle : Amen...

Faim de cycles : amènes !


rhooooo !!! :D


Haut
 Profil  
 
MessagePosté: 26 Avr 2016 21:57 
Hors ligne
Avatar de l’utilisateur

Inscription: 28 Sep 2013 10:24
Messages: 17028
Localisation: AUXOIS NORD !!!
Elle n'est plus fabriqué chez Cyclam mais il existe encore beaucoup de stock dans la creuse... 8)

_________________
Diab


Haut
 Profil  
 
Afficher les messages postés depuis:  Trier par  
Poster un nouveau sujet Répondre au sujet  [ 9 messages ] 

Heures au format UTC [ Heure d’été ]


Qui est en ligne

Utilisateurs parcourant ce forum: Aucun utilisateur enregistré et 1 invité


Vous ne pouvez pas poster de nouveaux sujets
Vous ne pouvez pas répondre aux sujets
Vous ne pouvez pas éditer vos messages
Vous ne pouvez pas supprimer vos messages
Vous ne pouvez pas joindre des fichiers

Rechercher:
Développé par phpBB® Forum Software © phpBB Group
Traduction par phpBB-fr.com